Улица Горчакова (3 мин. пешком)
Бульвар Адмирала Ушакова м. (8 мин. пешком)
Бунинская аллея м. (15 мин. пешком)
Улица Скобелевская м. (19 мин. пешком)
Дата публикации: 30 августа 2025
Дата обновления: 22 февраля 2026
+7 (499) 372-92-13
300 000 Р
3 000 за м.кв.
Улица Горчакова (3 мин. пешком)
Бульвар Адмирала Ушакова м. (8 мин. пешком)
Бунинская аллея м. (15 мин. пешком)
Улица Скобелевская м. (19 мин. пешком)
Дата публикации: 30 августа 2025
Дата обновления: 22 февраля 2026
+7 (499) 372-92-13
Класс: не указано
Площадь min: 100 м2
Площадь max: 100 м2
Этаж: не указано
Охрана: не указано
Парковка: есть
Территория: не указано
Срок аренды: длительный срок
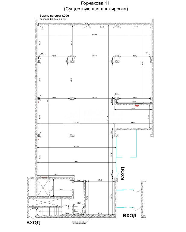
Код объекта: 1760006.Срочная аренда коммерческого помещения в МосквеАдрес и расположение: Улица Горчакова, 11 это идеальное место для вашего бизнеса. Транспортная доступность: Близость к основным транспортным магистралям обеспечивает лёгкий доступ как для сотрудников, так и для клиентов.Развитая инфраструктура района создаёт дополнительные удобства для ведения бизнеса.Технические характеристики: Год постройки: 2012 - Тип объекта: свободного назначения - Вход: отдельный - Доступ: свободный - Площадь: 100 кв. м - Этаж: -1 (цокольный) - Материал постройки: кирпично-монолитный - Высота потолков: 3 м. Есть возможность увеличить арендуемую площадь Комфорт и безопасность: Помещение оборудовано современной вентиляцией, пожарной сигнализацией, интернетом и кондиционером. Центральное отопление обеспечивает комфорт в холодное время года. Два раздельных санузла добавляют удобства. Ремонт и планировка: Евроремонт позволяет сразу приступить к организации рабочего пространства без дополнительных вложений. Просторная площадь и высота потолков создают возможности для креативной планировки. Парковка: Наземная парковка предоставляет достаточно мест для клиентов и сотрудников. Это предложение идеально подходит для бизнес-профессионалов, стремящихся к успеху. Не упустите шанс арендовать отличное коммерческое помещение по выгодной цене.Свяжитесь с нами, чтобы узнать больше и записаться на просмотр.Мы гарантируем безопасную сделку и юридическую поддержку нашим Клиентам.