Киевская (12 мин. пешком)
Киевская м. (12 мин. пешком)
Киевская м. (13 мин. пешком)
Киевский вокзал (12 мин. пешком)
Дата публикации: 6 февраля 2026
Дата обновления: 7 февраля 2026
+7 (499) 372-92-13
1 072 500 Р
2 083 за м.кв.
Киевская (12 мин. пешком)
Киевская м. (12 мин. пешком)
Киевская м. (13 мин. пешком)
Киевский вокзал (12 мин. пешком)
Дата публикации: 6 февраля 2026
Дата обновления: 7 февраля 2026
+7 (499) 372-92-13
Класс: не указано
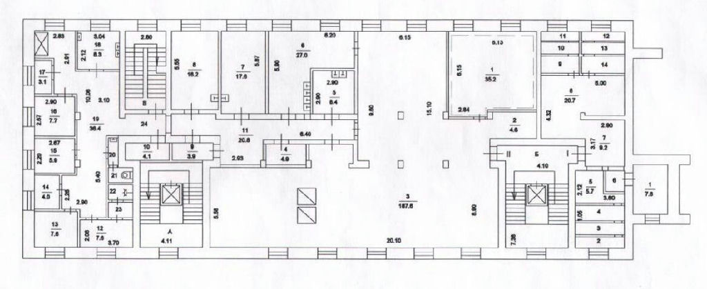
Площадь min: 514,8 м2
Площадь max: 515 м2
Этаж: 2
Охрана: есть
Парковка: не указано
Территория: не указано
Срок аренды: длительный срок
Код объекта: 2031883.Прекрасное предложение - аренда коммерческого помещения в Москве по адресу Большой Саввинский переулок, 9с2. Это идеальное место для вашего бизнеса благодаря престижному расположению и отличной доступности.Объект находится на 2 этаже 8-этажного кирпичного здания 1958 года постройки.Общая площадь составляет 514,8 кв. м, высота потолков 2,9 м.Помещение свободного назначения с общим входом и пропускной системой. Внутри уже сделан чистовой ремонт, есть вентиляция, кухня и охрана. Удобное расположение в одном из центральных районов Москвы делает это помещение привлекательным для различных видов бизнеса. Близость к основным транспортным магистралям и станциям метро обеспечивает лёгкий доступ для сотрудников и клиентов. класс здания ВЭлектричество 200 кВтНДС включен Просмотры по договоренности