Автозаводская (1 мин. пешком)
Автозаводская м. (МЦК) (4 мин. пешком)
ЗИЛ м. (МЦК) (13 мин. пешком)
Дубровка м. (МЦК) (17 мин. пешком)
Дата публикации: 6 мая 2025
Дата обновления: 23 января 2026
+7 (910) 570-14-54
76 950 000 Р
2 250 за м.кв.
Автозаводская (1 мин. пешком)
Автозаводская м. (МЦК) (4 мин. пешком)
ЗИЛ м. (МЦК) (13 мин. пешком)
Дубровка м. (МЦК) (17 мин. пешком)
Дата публикации: 6 мая 2025
Дата обновления: 23 января 2026
+7 (910) 570-14-54
Класс: A+
Площадь min: 34200 м2
Площадь max: 34 200 м2
Этаж: 21
Охрана: не указано
Парковка: есть
Территория: не указано
Срок аренды: длительный срок
Арт. 103315396
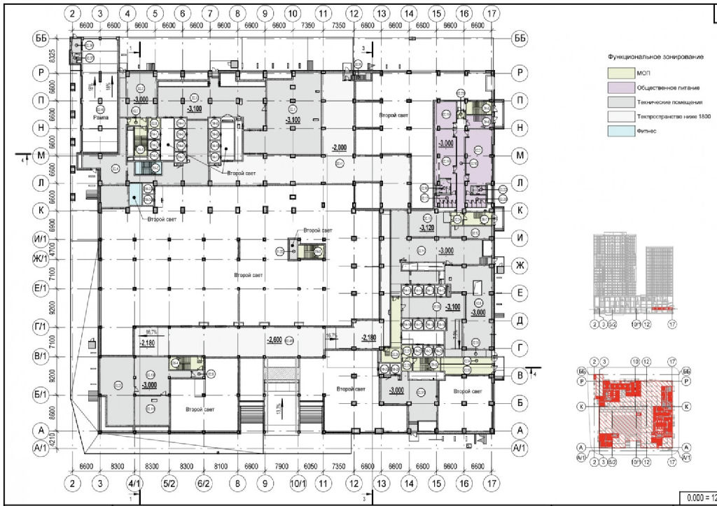
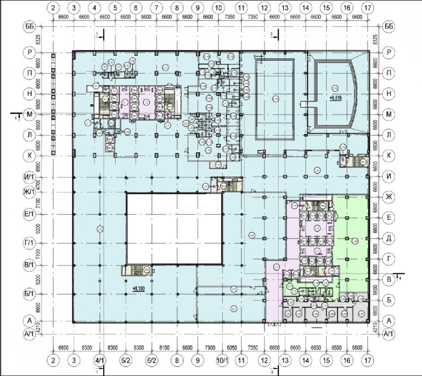
Предлагаем к аренде здание в ТЕХНОПАРКЕ ЗИЛ площадью 34 200кв.м.
Здание состоит из двух корпусов различной этажности - 21 и 16 этажей.
Типовая площадь одного этажа 1450 кв.м. Допустимая нагрузка на перекрытия 250-460 кг/кв.м.
Существует возможность увеличения технико-инженерных характеристик под Ваш вид деятельности.
Существует возможность выполнить ремонт силами Арендодателя.
26 лифтов.
Здание оснащено самыми передовыми инженерными системами, обеспечивающими комфорт и безопасность. Системы отопления, вентиляции, кондиционирования, водоснабжения и канализации отвечают всем современным стандартам.
Располагается на территории 4,5 га.
Парковочное пространство: наземный, подземный паркинг на общее количество 747 м/м.
Инфраструктура:
Коворкинг
Конгрессно-выставочный комплекс с музеем
Фитнес с бассейном
Открытый бассейн
Рестораны, кафе
Зоны отдыха
Крупные резиденты ТЕХНОПАРКА,
вокруг которых формируются производственные цепочки могут получить статус якорного резидента и воспользоваться инвестиционным налоговым вычетом на сумму до 90% расходов на оснащение площадки оборудованием, применив пониженную ставку по налогу на прибыль в размере 16,5% в региональной части
ТЕХНОПАРК ЗИЛ это объект инновационной инфраструктуры для локализации и развития высокотехнологичного бизнеса
Что дает резидентам локализация в Технопарке ЗИЛ?
Доступ к уникальной инфраструктуре
От лабораторий и чистых комнат до бизнес-инкубаторов
Экосреда инновационных компаний
Сообщество инноваторов и производителей
Формирование кооперационных и производственных цепочек
Помощь в поиске партнеров в технопарке и за его пределами
Финансовые меры поддержкиГранты на развитие деятельностиИнвестиционный налоговый вычетГранты на покупку и лизинг оборудования и выплаты процентов по кредитам
Если Ваша организация осуществляет виды деятельности, такие как:
Обрабатывающие производства:
Производство пищевых продуктов
Производство напитков
Производство табачных изделий
Производство текстильных изделий
Производство одежды
Производство кожи и изделий из кожи
Обработка древесины и производство изделий из дерева и пробки, кроме мебели, производство изделий из соломки и материалов для плетения
Производство бумаги и бумажных изделий
Деятельность полиграфическая и копирование носителей информации
Производство кокса и нефтепродуктов
Производство химических веществ и химических продуктов
Производство лекарственных средств и материалов, применяемых в медицинских целях и ветеринарии
Производство резиновых и пластмассовых изделий
Производство прочей неметаллической минеральной продукции
Производство металлургическое
Производство готовых металлических изделий, кроме машин и оборудования
Производство компьютеров, электронных и оптических изделий
Производство электрического оборудования
Производство машин и оборудования, не включенных в другие группировки
Производство автотранспортных средств, прицепов и полуприцепов
Производство прочих транспортных средств и оборудования
Производство мебели
Производство прочих готовых изделий
Ремонт и монтаж машин и оборудования
Деятельность в области информации и связи:
Деятельность издательская
Производство кинофильмов, видеофильмов и телевизионных программ, издание звукозаписей и нот
Деятельность в области телевизионного и радиовещания
Деятельность в сфере телекоммуникаций
Разработка компьютерного программного обеспечения, консультационные услуги в данной области и другие сопутствующие услуги
Деятельность в области информационных технологий
Научные исследования и разработки в области общественных и гуманитарных наук
Научные исследования и разработки в области биотехнологии
Остались вопросы? - звоните. Организуем оперативный показ, ответим на все интересующие вопросы.
Территория будущего ждет Вас.