Аминьевская (5 мин. пешком)
Аминьевская м. (МЦД-4) (9 мин. пешком)
Очаково м. (МЦД-4) (16 мин. пешком)
Очаково станция (16 мин. пешком)
Дата публикации: 26 февраля 2026
Дата обновления: 3 марта 2026
+7 (499) 372-92-13
776 940 Р
6 900 за м.кв.
Аминьевская (5 мин. пешком)
Аминьевская м. (МЦД-4) (9 мин. пешком)
Очаково м. (МЦД-4) (16 мин. пешком)
Очаково станция (16 мин. пешком)
Дата публикации: 26 февраля 2026
Дата обновления: 3 марта 2026
+7 (499) 372-92-13
Класс: не указано
Площадь min: 112,6 м2
Площадь max: 113 м2
Этаж: 1
Охрана: не указано
Парковка: не указано
Территория: не указано
Срок аренды: длительный срок
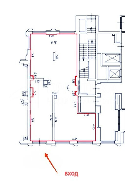
Код объекта: 2055950.Сдается ПСН 112.6 м2 на 1 этаже в ЖК Vangarden (5 мин. от м. Аминьевская) Сдаётся в аренду помещение свободного назначения площадью 112.6 м2 на первом этаже жилого комплекса бизнес-класса Vangarden. Идеально подходит для розничного магазина, кофейни, салона красоты, офиса или студии. Ключевые преимущества локации:- Отличная транспортная доступность: 5 минут пешком от станции метро "Аминьевская".- Высокий пешеходный трафик: Выход на центральную пешеходную улицу на границе жилых комплексов Vangarden и Матвеевский парк.- Плотная жилая застройка: Широкая аудитория постоянных жителей.- Развитая инфраструктура: Все необходимые услуги и сервисы в шаговой доступности. Характеристики помещения:- Площадь: 112.6 м2.- Высота потолков: 4.8 м (есть возможность устройства антресольного этажа).- Планировка: Адаптивное открытое пространство, удобное для зонирования.- Витрины: Панорамное остекление по фасаду.- Вход: Отдельный вход с улицы.- Вывеска: Возможность размещения рекламной вывески (согласование с управляющей компанией).- Электрическая мощность: 22.5 кВт (достаточно для большинства видов бизнеса).- Состояние: черновая отделка Условия аренды: Арендная ставка: 6900 руб./м2/мес.Коммунальные платежи: Оплачиваются отдельно по счетчикам.Срок аренды: От 1 года, с возможностью пролонгации.Комиссия агентам: Нет.Система налогообложения арендодателя: УСН (без НДС).Разрешенные виды деятельности (ВРИ): Торговля, общественное питание, бытовые услуги, офисная деятельность (уточняется по документам).